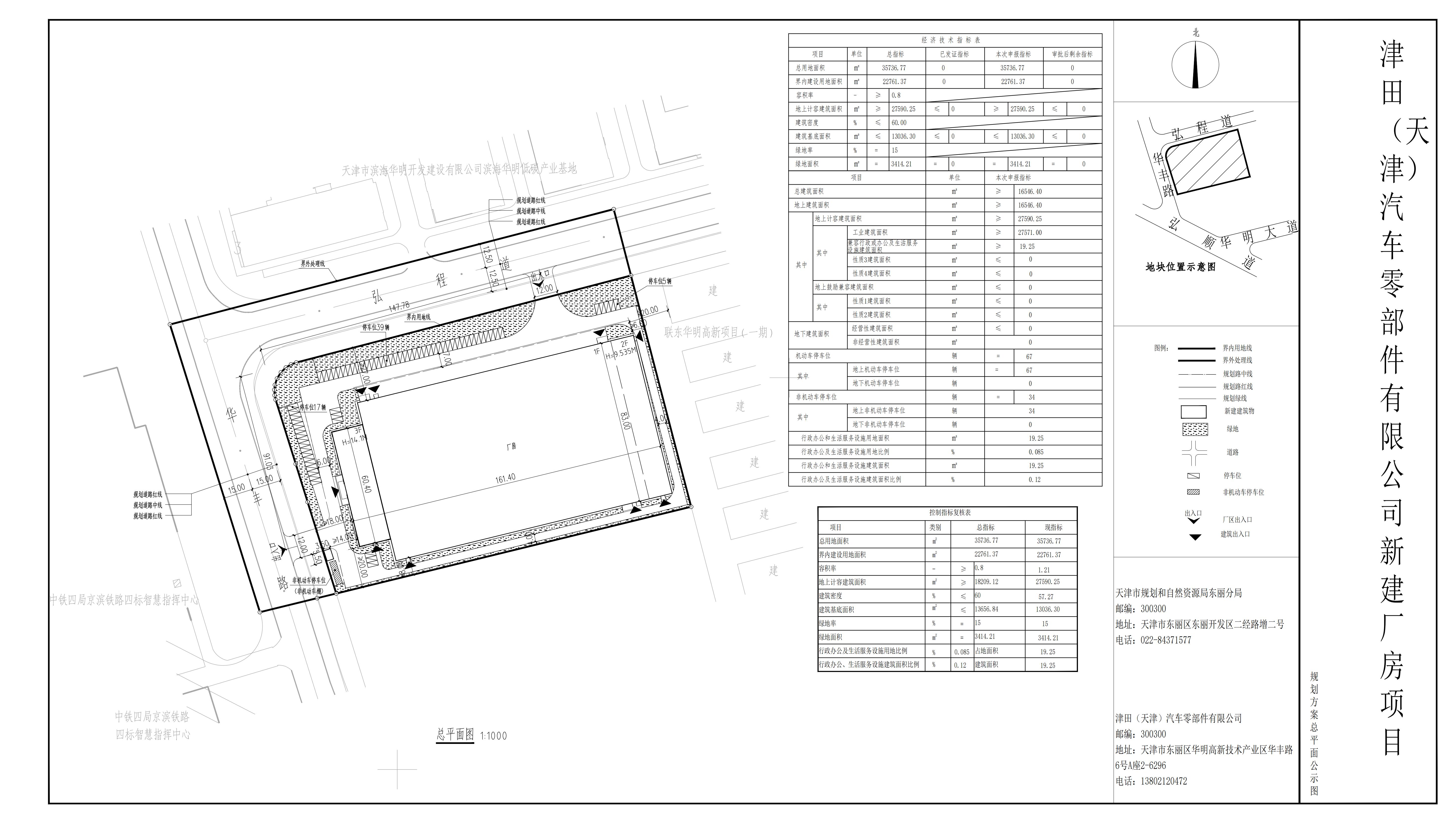
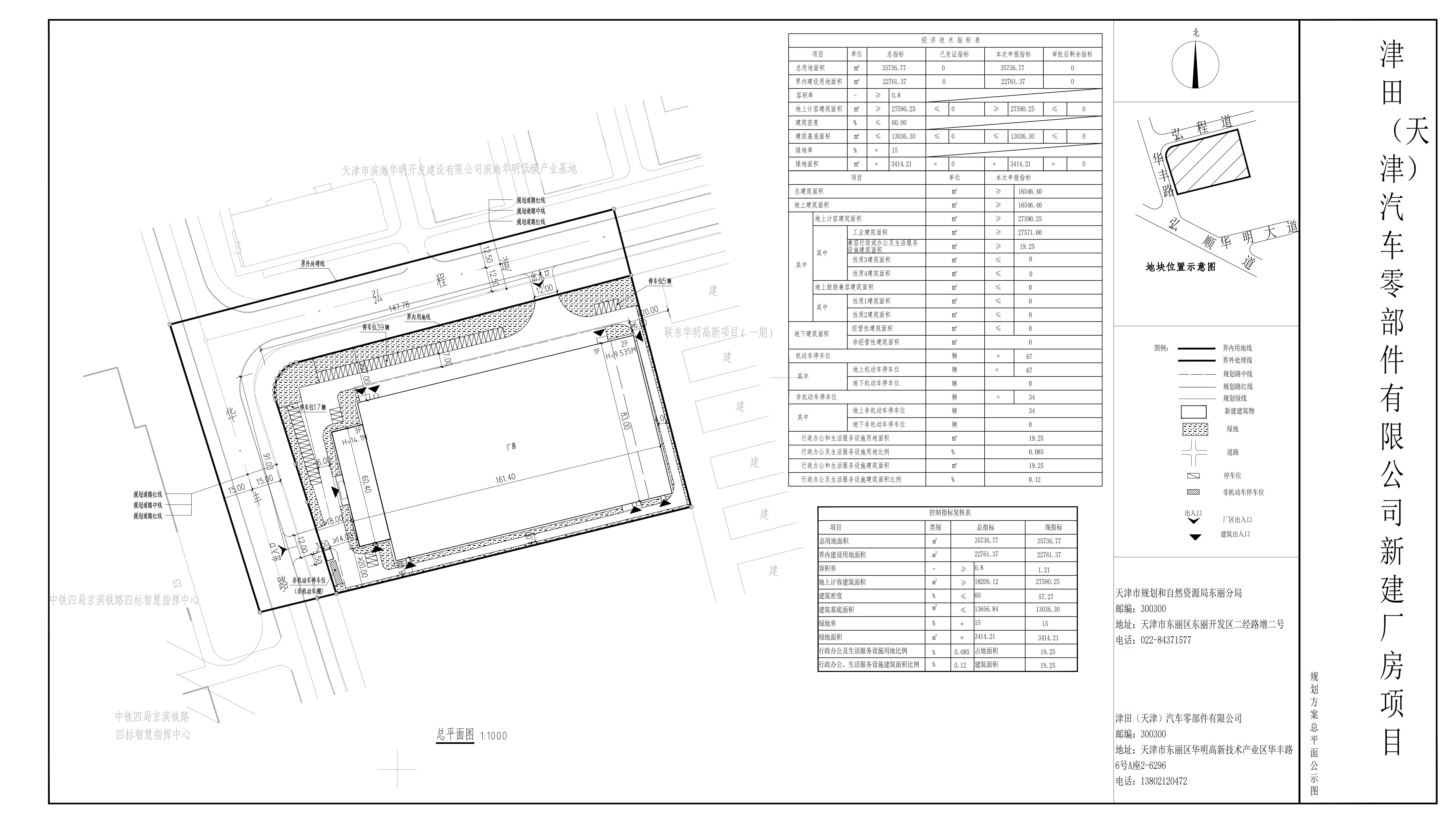
天津市规划和自然资源局东丽分局,依据《中华人民共和国城乡规划法》的有关要求,现将津田(天津)汽车零部件有限公司新建厂房项目建筑工程设计方案总平面图进行公示,公示期为7个工作日。意见反馈请回复东丽分局建管科。
通讯地址:天津市东丽开发区二经路增二号
联系电话:022-84371577
邮政编码:300300

天津市规划和自然资源局东丽分局
2025年5月29日
主办:USDT博彩平台(中国)唯一官方网站 版权所有© 承办:USDT博彩平台(中国)唯一官方网站 办公室
网站标识码:1201100002 津ICP备17009684号-1
津公网安备 12011002018073号