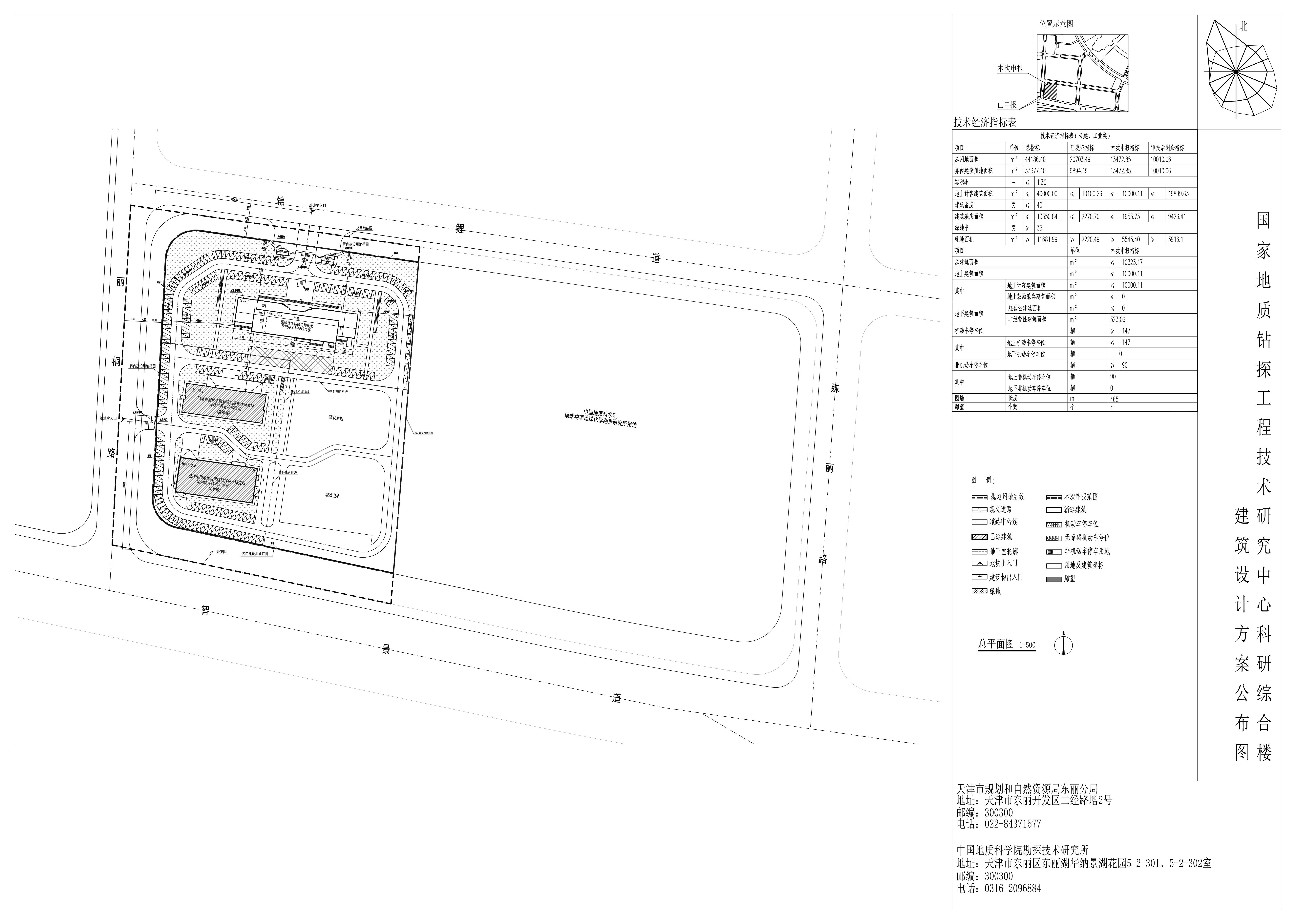
天津市规划和自然资源局东丽分局,依据《中华人民共和国城乡规划法》的有关要求,现将国家地质钻探工程技术研究中心科研综合楼建筑工程设计方案总平面图进行公布,公布期限为信息发布之日起至建设项目规划验收合格为止。
通讯地址:天津市东丽开发区二经路增二号
联系电话:022-84371577
邮政编码:300300

天津市规划和自然资源局东丽分局
2023年8月8日
版权所有:USDT博彩平台(中国)唯一官方网站 门户网站 中文域名:USDT博彩平台(中国)唯一官方网站 .政务 USDT博彩平台 政府.政务
网站标识码:1201100002 津ICP备17009684号
津公网安备 12011002018073号